Коттеджный поселок Заречный - Новорижское шоссе Служба продаж загородной недвижимости
О коттеджном поселке Типы домов в поселке Цены на дома и участки =
Как добраться до поселка Объекты инфраструктуры План поселка Контакты
"Заречный" - единственный коттеджный поселок в регионе, на территории которого расположился Апарт-отель и находится в курортной зоне Истринского района на излучине реки Истра, одновременно в окружении ЛЕСА!
Таких предложений больше нет!

Квартира площадью 110 кв.м. в доме №3

Самая большая по площади квартира в доме №3 в поселке "Заречный". Квартира является угловой, что позволяет создать уникальное освещение и атмосферу. На первом этаже - терраса, на втором - балкон. Мансарда площадью 22 кв.м. Место под парковку. Идеальное жилье для большой семьи с детьми.

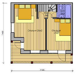
Планировка квартиры площадью 110 кв.м.

Квартира в Подмосковье - 110 кв метров, 1-й этаж Квартира в Подмосковье - 110 кв метров. Вид на дом
1-й этаж Вид на дом
Квартира в Подмосковье - 110 кв метров, 2-й этаж Квартира в Подмосковье - 110 кв метров, мансарда
2-й этаж мансарда

 

Планировка квартир в доме №3

» квартира 80 кв.м.
» квартира 90 кв.м.
» квартира 100 кв.м.
» квартира 110 кв.м.

 

 

Квартиры в Подмосковье в других домах в КП "Заречный":
Дом №1, Дом №2, Дом №3

Готовый дом за 14 млн руб.
Евроотделка, все коммуникации подключены!
У реки и леса.
Рассрочка на 5 лет

Участок: 3 сот.Дом: 140 кв.м.
 

В КП "Заречный" предлагаем:

» таунхаусы
» дома в альпийском стиле
» дома в баварском стиле
» дома в финском стиле
» квартиры

 

ЗАКАЗАТЬ ПРОПУСК

Желаемая дата и время посещения:

Ваше имя:

Телефон:

Откуда узнали:

Дополнительно:

 

Таунхаус за 9,6 млн руб.
Земля в подарок!
Берег реки, все центральные коммуникации, евроотделка

Блок: 111 кв.м.100 кв.м. земли